Gewerbebau

Anbau eines Wohn- und Geschäftshauses

Gewerbebau

Anbau eines Wohn- und Geschäftsgebäudes mit Intensivpflegestation und Arztpraxis

in Bönen

Erstellung der statischen Berechnung für den Anbau eines Wohn- und Geschäftshauses an die bestehende Volksbank mit Arztpraxis, Intensivpflegestation, Wohn- und Gewerbeeinheit in Bönen. Zudem wurde auch der Abbruch der angrenzenden ehemaligen Wirtschaft, welche für den Anbau weichen musste, statisch begleitet.

  • Abbruch
  • Anbau
  • Mauerwerks- und Betonbau
  • 2.200 Quadratmeter
  • 13 Monate
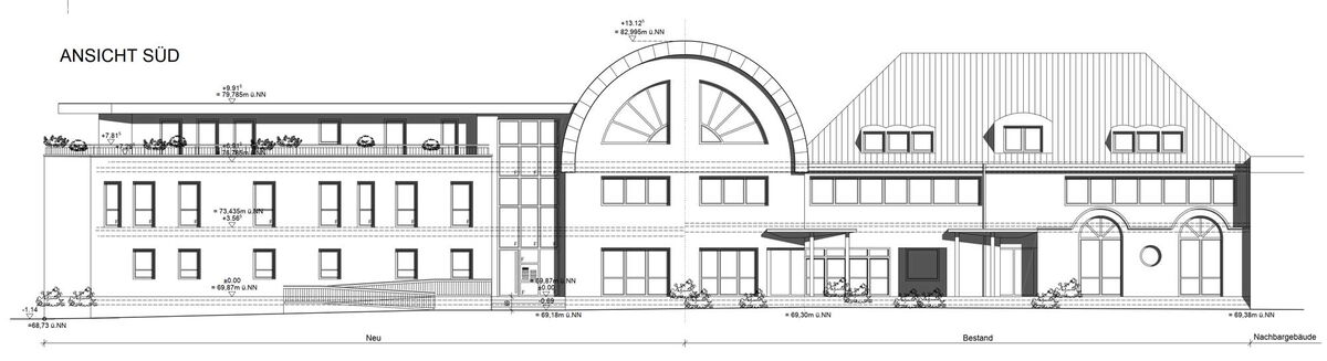
Technische Zeichnung des Anbauprojektes.

Statik Maass

Ihr Partner im Bereich Statische Berechnungen

Kontaktieren Sie uns jetzt, um Ihr individuelles
Bau-Vorhaben zu besprechen!

Logo der Ingenieurkammer-Bau NRW
Logo KFW
Logo Energieeffizienz Experte
Logo der Deutschen Energie-Agentur
Logo der LAB
Logo Statik Maass

Der Aufgabenschwerpunkt liegt im Bereich Tragwerksplanung (Statik), Schall-, Wärmeschutz und Betreuung von KfW-Effizienzhäuser.
Es werden Bauvorhaben der unterschiedlichsten Größenordnungen bearbeitet.

Kontakt

STATIK MAASS
Ingenieurgesellschaft mbH
Witheborgstraße 11 b
59199 Bönen

+49 2383 92111-0
+49 2383 92111-99
info(at)statik-maass.de

Soziale Netzwerke

Copyright 2026. All Rights Reserved.
Einstellungen gespeichert
Datenschutzeinstellungen

Hinweis: Dies ist eine Vorlage. Bitte passen Sie den Text an Ihre spezifischen Anforderungen an:
Wir verwenden Cookies und ähnliche Technologien, um Ihre Erfahrung auf unserer Website zu verbessern. Einige Cookies sind für die grundlegende Funktionalität erforderlich, während andere dazu beitragen, die Nutzung zu analysieren und unsere Dienste zu optimieren. Detaillierte Informationen finden Sie in unserer Datenschutzerklärung.

Technisch erforderliche Cookies werden immer geladen.

Hinweis: Bitte passen Sie den Text an Ihre spezifischen Anforderungen an.
Eine Übersicht der verwendeten Theme-Cookies finden Sie in der Dokumentation. Wir empfehlen, diese hier oder in Ihrer Datenschutzerklärung aufzuführen.

You are using an outdated browser. The website may not be displayed correctly.